Built With Love
PERMANENT, COST-EFFECTIVE HOUSING.
Dominant themes among adults with disabilities are their desires for permanency, independence and self-determination. We believe home ownership at Luna Azul offers families and their life challenged adult both permanence, and the most reliable degree of choice and freedom. Luna Azul is an excellent alternative to a group home setting.
MASTERFULLY CRAFTED COTTAGES
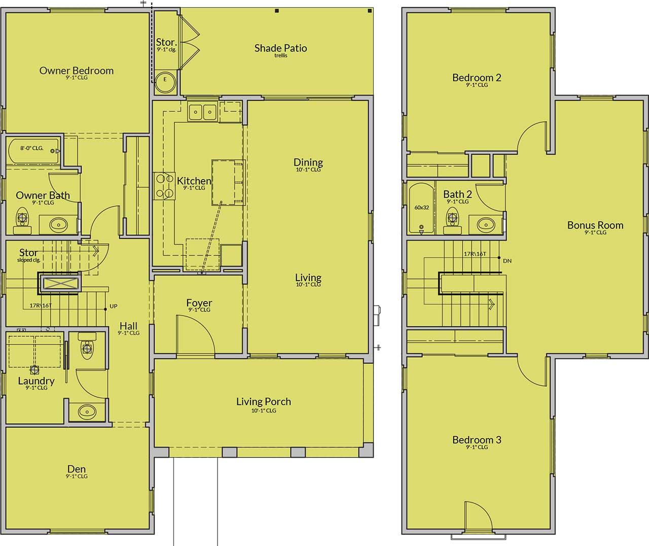
Luna Azul offers homeowners with 2 and 3 bedroom options ranging in size from 1,152 sqft to 1,956 sqft. Designed with open living spaces, large front porches and high quality finishes these homes are built for a lifetime.




THOUGHTFUL FEATURES & FINISHES
EXERIOR FEATURES
INTERIOR FEATURES
KITCHEN FEATURES
BATHROOM FEATURES
GALLERY

Luna Azul is America’s first for sale residential community for adults with disabilities. Located in North Phoenix, Arizona, Luna Azul is an intimate "pocket neighborhood" developed by Mark Roth of ECC Management, LLC.
INFORMATION
©2026 LUNA AZUL | ALL RIGHTS RESERVED | LUNA AZUL PERMANENT HOUSING | PRIVACY POLICY
1500 E Wahalla Ln. Phoenix, AZ 85024